Chicago Riverwalk
Item
- Title
- Chicago Riverwalk
- Description
-
2017 Rudy Bruner Award for Urban Excellence - Silver Medal
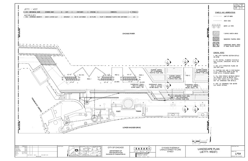
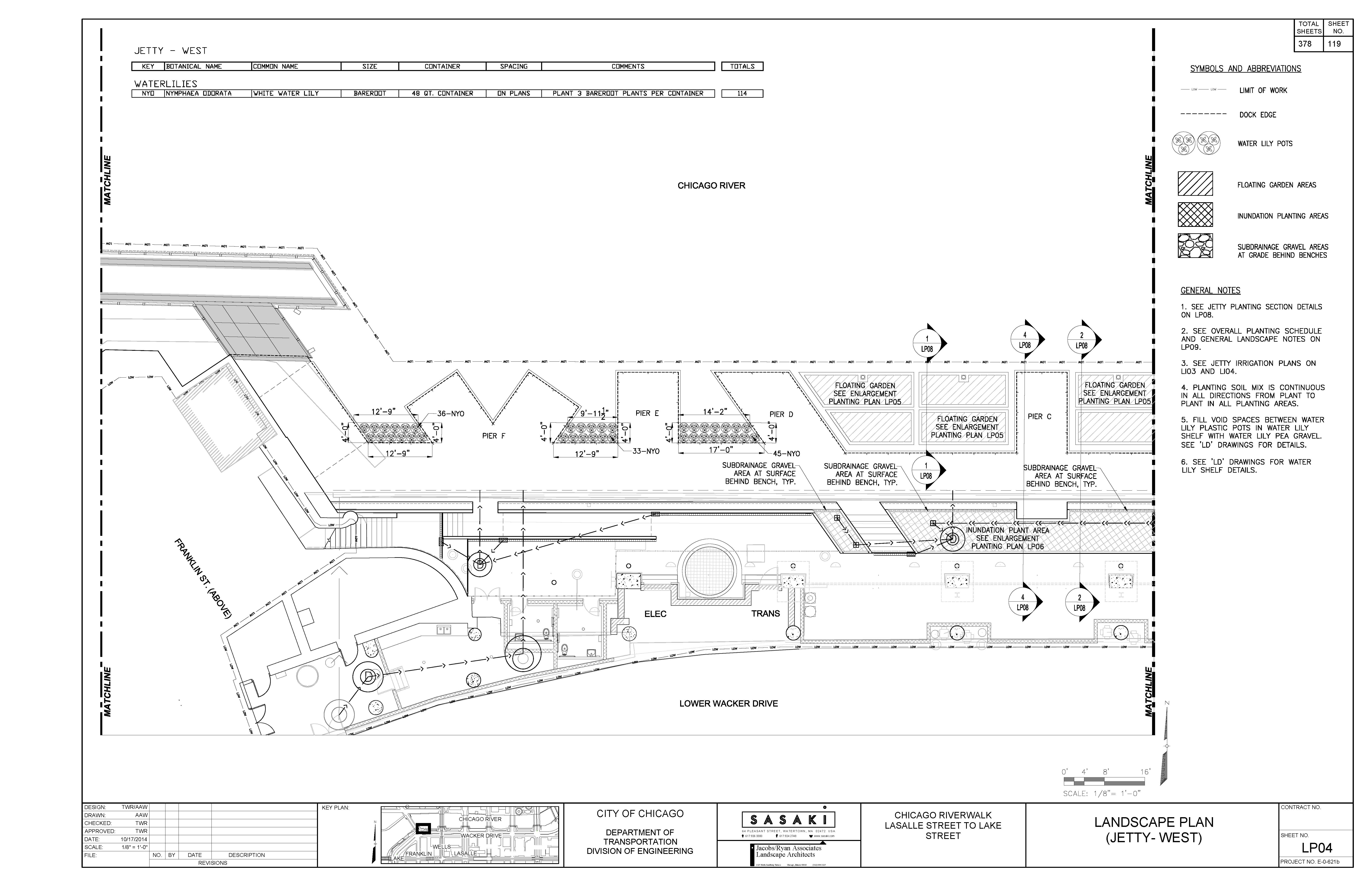
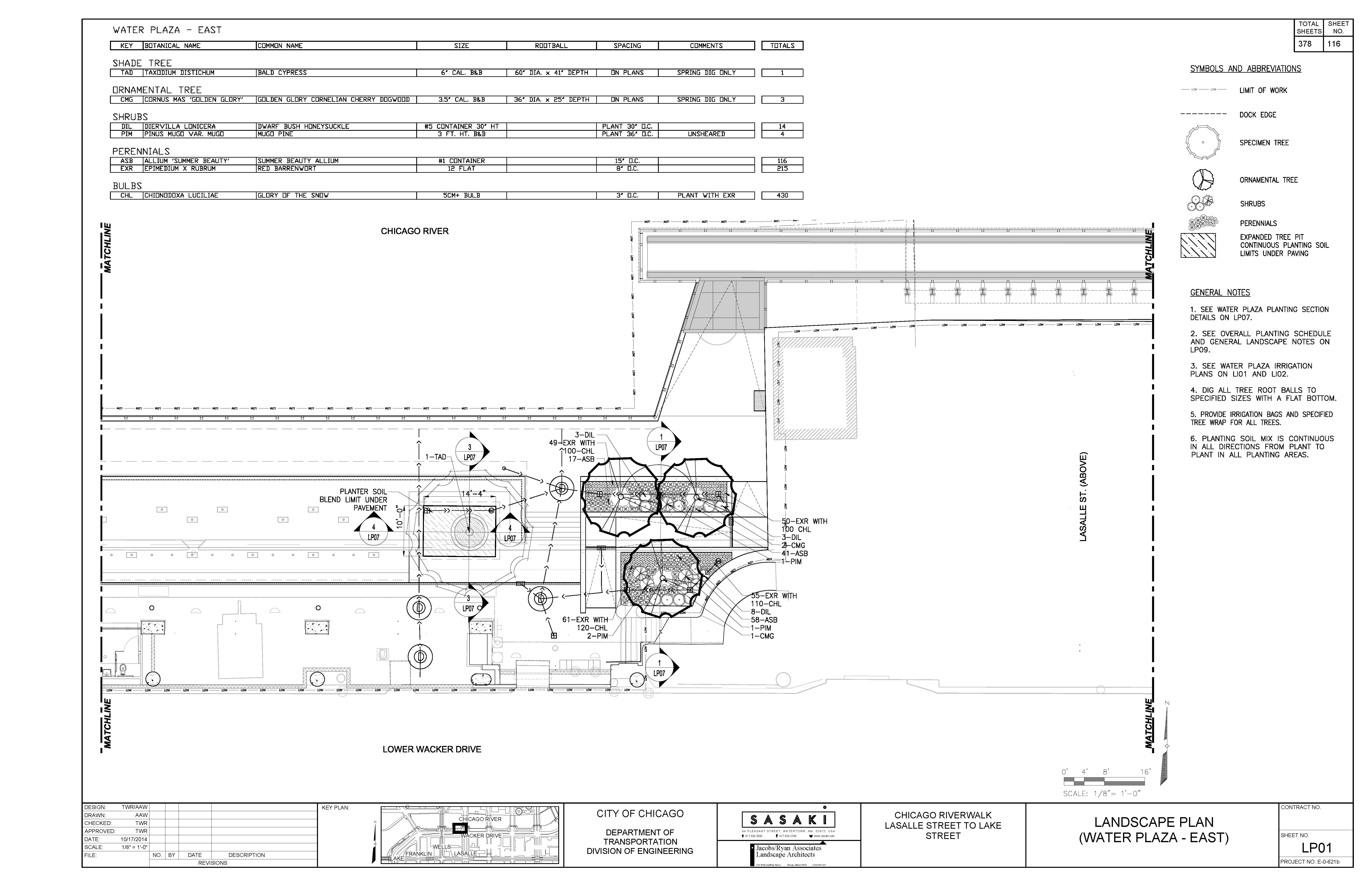
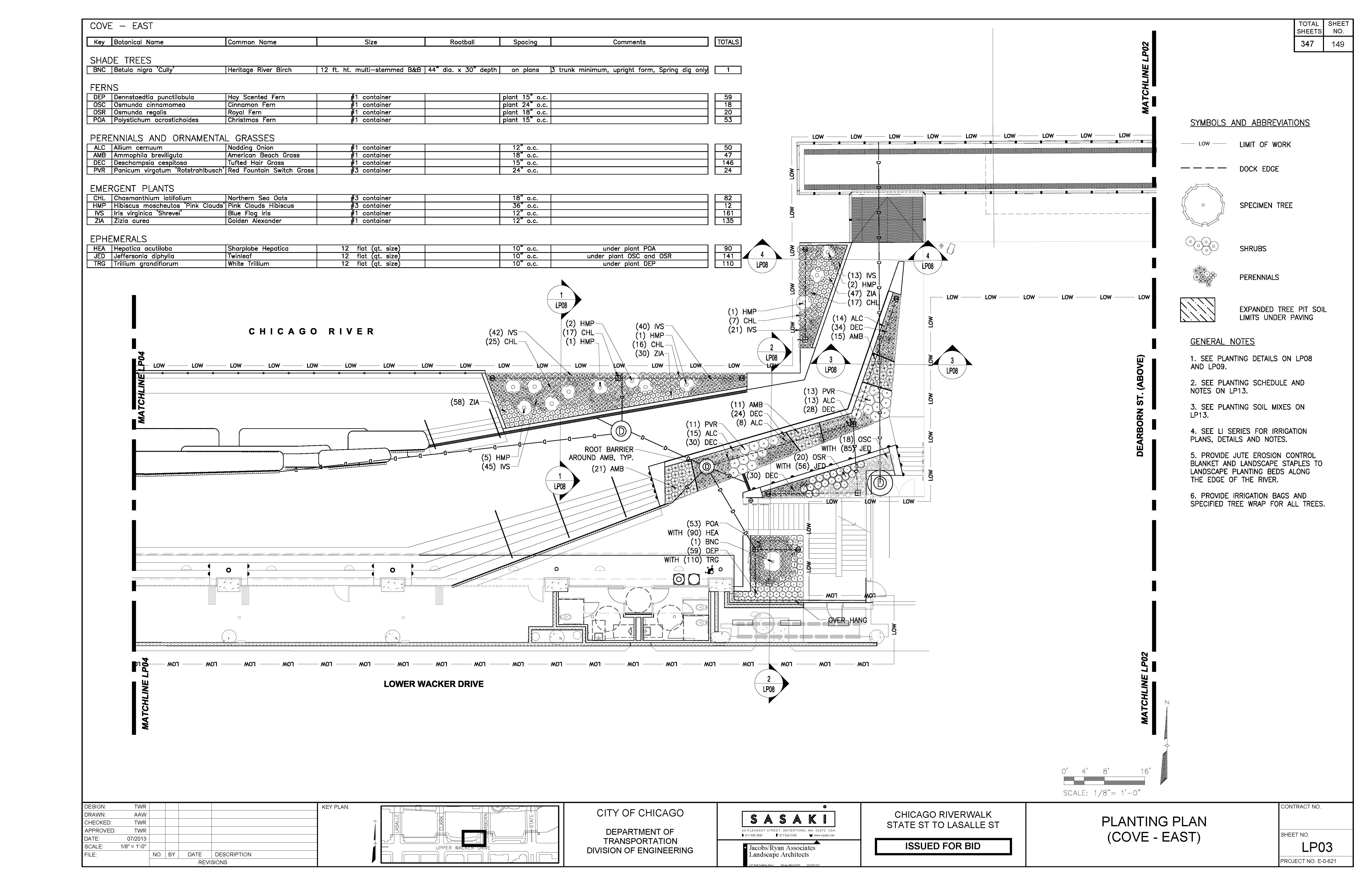
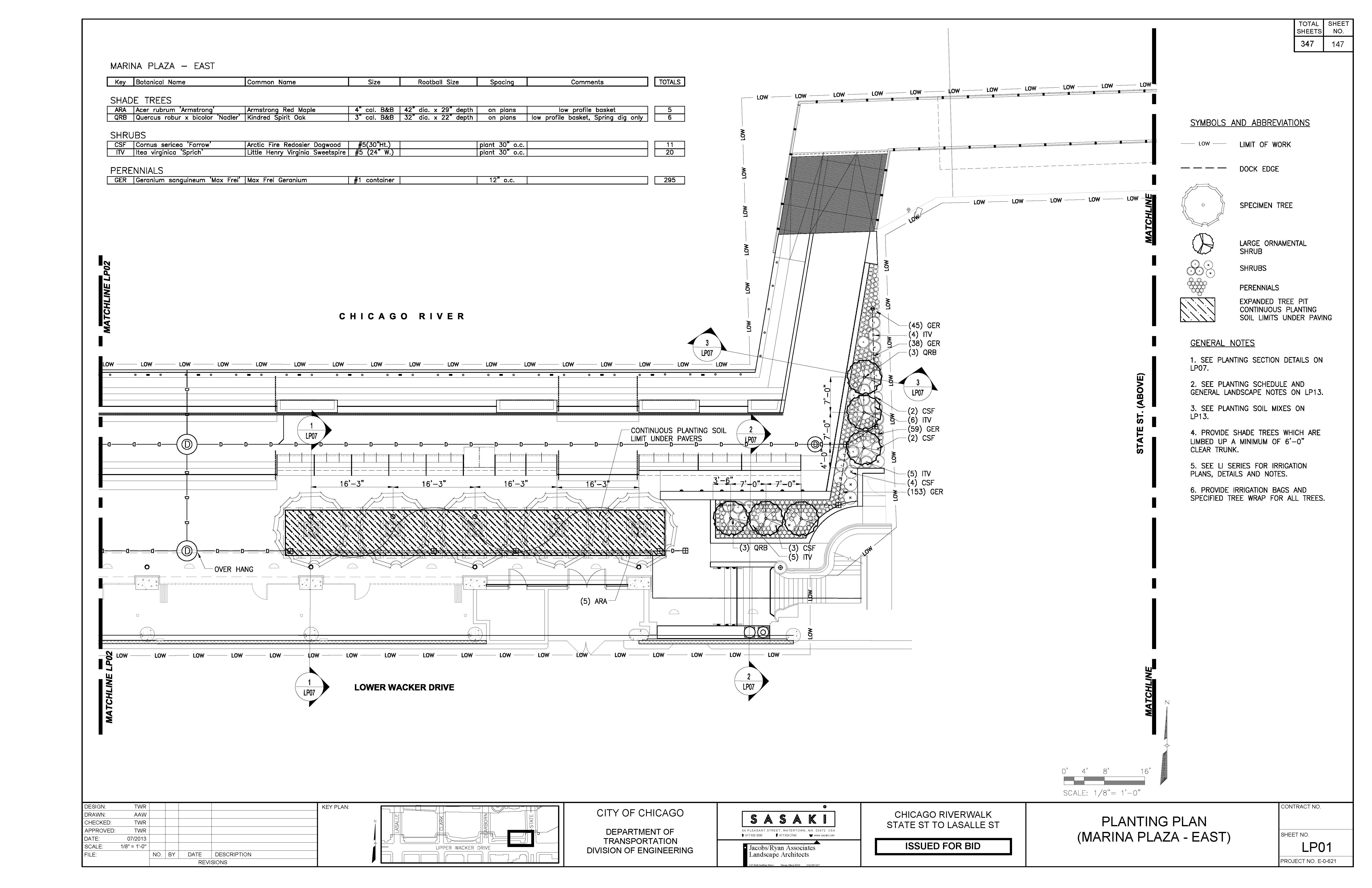
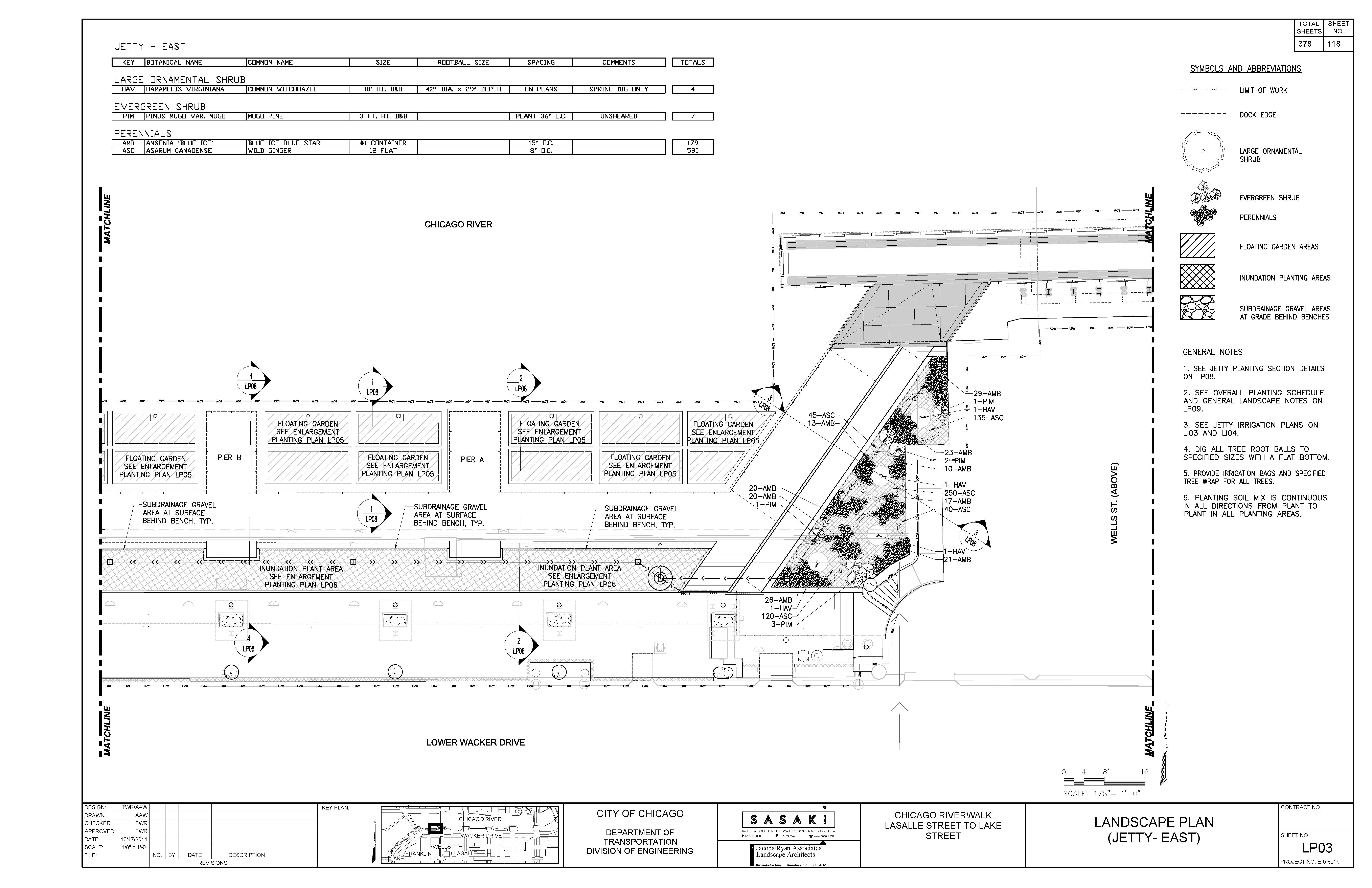
Phases 2 & 3 of Chicago’s Riverwalk transformed underutilized waterfront infrastructure into five distinct “rooms” connecting riverside amenities to the city. The project faced the technical challenge of lowering the Riverwalk to the river’s edge to enable boating and water recreation while creating a sustainable, flood-resilient landscape.
While design elements and materials provide a strong sense of continuity along the path, each of the five waterfront blocks offers a unique shape and programmatic approach to exploring the relationship between the river and the city. New waterfront amenities include art installations and events, educational programs and interpretive signage, restaurants and outdoor seating, kayak rentals, and piers and floating wetland gardens for interactive learning about the river’s ecology. The $95 million project covers 3.5 acres and was completed in October 2016. - Coverage
- Chicago, IL
- Date
- 2016
- Subject
- waterfronts
- environmental planning
- public spaces
- parks
- recreation areas
- Contributor
-
City of Chicago
- Contributor
- en Public Agency
-
Sasaki
- Contributor
- en Designer
-
Chicago Loop Alliance
- Contributor
- en Community Group
-
Friends of the Chicago River
- Contributor
- en Public Agency
-
Chicago Department of Transportation
- Contributor
- en Public Agency
- Rights
- This digital collection is made available for research and educational purposes. Researchers are responsible for determining copyright status, and securing permissions for use and publication of any material. Copyright for items in this collection may be held by the creators, their heirs, or assigns. Researchers are required to obtain written permission from copyright holders and the University Archives prior to reproducing or publishing materials, including images and quotations. For inquiries about reproduction requests and permissions, please contact the University Archives at: http://library.buffalo.edu/archives/.
- Media
2017_Chicago_Riverwalk_IMAGE_Christian_Phillips.jpg
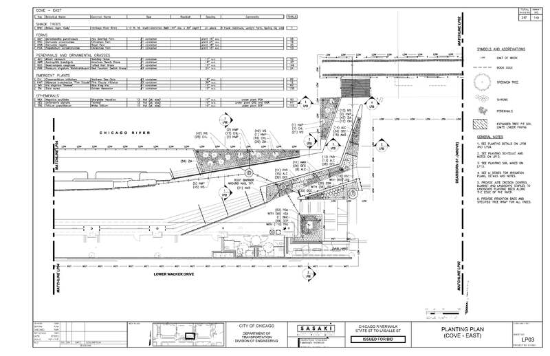
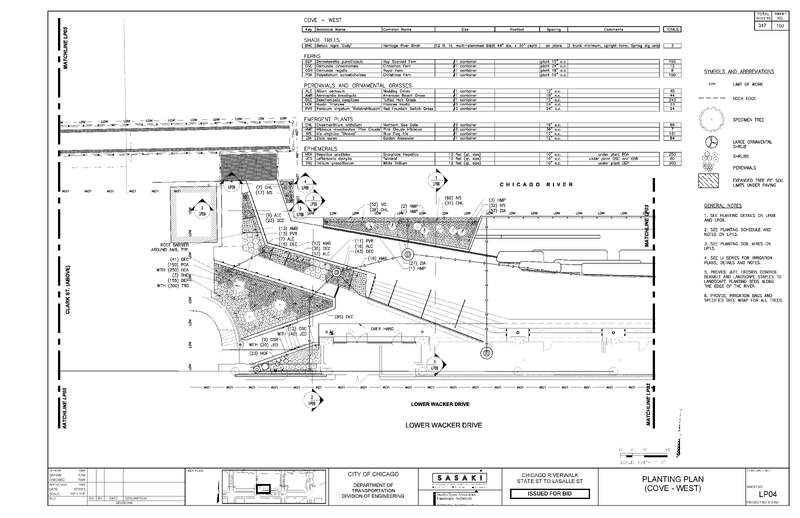
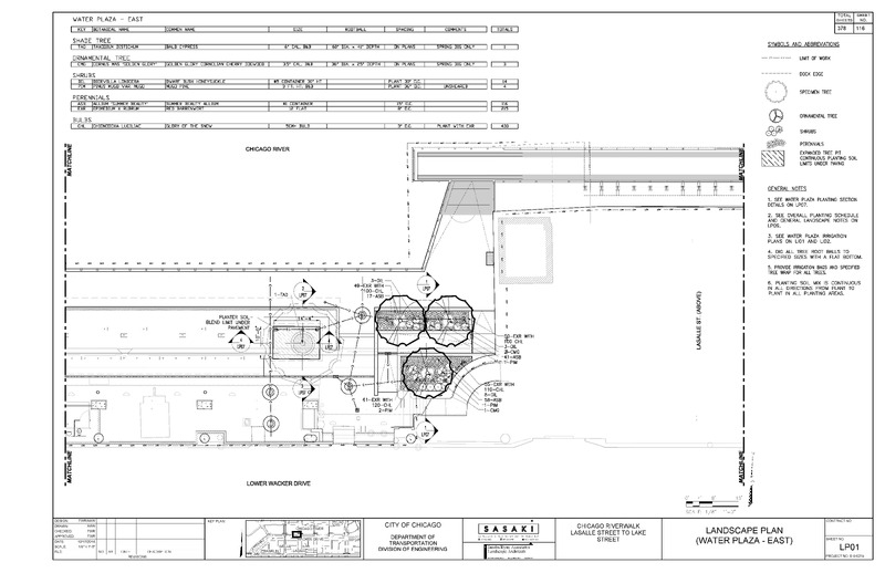
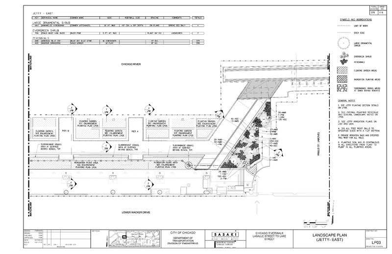
2017-0523_CRW Planting Plans_Page_01.jpg
2017-0523_CRW Planting Plans_Page_02.jpg
2017-0523_CRW Planting Plans_Page_03.jpg
2017-0523_CRW Planting Plans_Page_04.jpg
2017-0523_CRW Planting Plans_Page_05.jpg
2017-0523_CRW Planting Plans_Page_06.jpg
2017-0523_CRW Planting Plans_Page_07.jpg
2017-0523_CRW Planting Plans_Page_08.jpg
2017-0523_CRW Planting Plans_Page_09.jpg
2017-0523_CRW Planting Plans_Page_10.jpg
2017-0523_CRW Planting Plans_Page_11.jpg
2017-0523_CRW Planting Plans_Page_12.jpg
2017-0523_CRW Planting Plans_Page_13.jpg
2017-0523_CRW Planting Plans_Page_14.jpg
2017-0523_CRW Planting Plans_Page_15.jpg
2017-0523_CRW Planting Plans_Page_16.jpg
2017-0523_CRW Planting Plans_Page_17.jpg
Chicago Riverwalk_graphic_02_annotated.jpg
2014-0617_DSC02466.JPG
2014-0617_DSC02469.JPG
2014-0617_DSC02472.JPG
2014-0617_DSC02477.JPG
2014-0617_DSC02487.JPG
2014-0617_DSC02490.JPG
2014-0618_IMG_3807.JPG
2014-0618_IMG_3820.JPG
2014-0618_IMG_3824.JPG
2014-0618_IMG_3826.JPG
2014-0618_IMG_3827.JPG
2014-0710_DSC02493.JPG
2014-0710_DSC02501.JPG
2014-0710_DSC02507.JPG
2014-0710_DSC02521.JPG
2014-1024_DSC04668.JPG
2014-1024_DSC04702.JPG
IMG_20140606_103331885.jpg
Chicago River Walk_phases.JPG
Chicago_kayaks.JPG
20140228_145603 (Large).jpg
Chicago Riverwalk Theater Far 10-22-14.jpg
Chicago_Riverwalk_Existing (1 of 1).jpg
IMG_2620.JPG
IMG_4621.JPG
IMG_4763.JPG
IMG_5383.JPG
IMG_20141003_173154629.jpg
Old Riverwalk.png
P1030042.JPG
P1040117.JPG
PB180002.JPG
Riverwalk Photo.jpg
State-Dearborn-Existing-1.jpg
Under Constructio Chicago Riverwalk Final 8 13 09 low res.bmp
Under Constructio Chicago Riverwalk Final 8 13 09 low res.jpg
Under Constructio Chicago Riverwalk Final 8 13 09.jpg
040517_City’s photographer_Walter Mitchell (7).jpg
040517_City’s photographer_Walter Mitchell (8).jpg
040517_City’s photographer_Walter Mitchell (9).jpg
040517_City’s photographer_Walter Mitchell (10).jpg
040517_City’s photographer_Walter Mitchell (11).jpg
040517_City’s photographer_Walter Mitchell (12).jpg
040517_City’s photographer_Walter Mitchell (13).jpg
Chicago Riverwalk_At the City Winery_Michael Claffey.JPG
Summer 2017_©Christian Phillips Photography (1).jpg
Summer 2017_©Christian Phillips Photography (2).jpg
Summer 2017_©Christian Phillips Photography (3).jpg
Summer 2017_©Christian Phillips Photography (4).jpg
Summer 2017_©Christian Phillips Photography (5).jpg
Summer 2017_©Christian Phillips Photography (6).jpg
Summer 2017_©Christian Phillips Photography (7).jpg
Summer 2017_©Christian Phillips Photography (8).jpg
Summer 2017_©Christian Phillips Photography (9).jpg
Summer 2017_©Christian Phillips Photography (10).jpg
Summer 2017_©Christian Phillips Photography (11).jpg
Summer 2017_©Christian Phillips Photography (12).jpg
Summer 2017_©Christian Phillips Photography (13).jpg
Summer 2017_©Christian Phillips Photography (14).jpg
Summer 2017_©Christian Phillips Photography (15).jpg
Summer 2017_©Christian Phillips Photography (16).jpg
Summer 2017_©Christian Phillips Photography (17).jpg
Summer 2017_©Christian Phillips Photography (18).jpg
Summer 2017_©Christian Phillips Photography (19).jpg
Summer 2017_©Christian Phillips Photography (20).jpg
Summer 2017_©Christian Phillips Photography (21).jpg
Summer 2017_©Christian Phillips Photography (22).jpg
Summer 2017_©Christian Phillips Photography (23).jpg
001 PRINT Ross Barney Chicago Riverwalk Kate Joyce Studios Photo.tif
003 PRINT Ross Barney Chicago Riverwalk Kate Joyce Studios Photo.tif
004 PRINT Ross Barney Chicago Riverwalk Kate Joyce Studios Photo.tif
005 PRINT Ross Barney Chicago Riverwalk Phase III.tif
007 PRINT Ross Barney Chicago Riverwalk Phase III.tif
008 PRINT Ross Barney Chicago Riverwalk Phase III.tif
009 PRINT Ross Barney Chicago Riverwalk Phase III.tif
010 PRINT Ross Barney Chicago Riverwalk Kate Joyce Studios Photo.tif
ROOM_01_axon_marina_2012-0521 Stakeholder Presentation.pdf
ROOM_01_axon_marina.jpg
ROOM_02_axon_cove_2012-0521 Stakeholder Presentation.pdf
ROOM_02_axon_cove.jpg
ROOM_03_axon_rivertheater_2012-0521 Stakeholder Presentation.pdf
ROOM_03_axon_rivertheater.jpg
ROOM_04_axon_swim_2012-0521 Stakeholder Presentation.pdf
ROOM_04_axon_swim.jpg
ROOM_05_axon_jetty_2012-0521 Stakeholder Presentation.pdf
ROOM_05_axon_jetty.jpg
ROOM_06_axon_boardwalk_2012-0521 Stakeholder Presentation.pdf
ROOM_06_axon_boardwalk.jpg
Linked resources
| Title | Class |
|---|---|
Chicago Riverwalk application |
|
Chicago Riverwalk case study |
Item: Chicago Riverwalk












































































































